맹씨고택 - 맹씨행단 - 배방읍 - 아산시 - 충남
2025. 12. 31. 18:31ㆍ국내여행/충청도






















맹사성은 고려 말 최영 장군의 손자사위로, 최영장군이 맹씨행단을 건립한 후 물려주었다는 이야기가 전한다. 그 후 맹씨 일가가 지금껏 터를 유지하며 살고 있다. 현재는 본채를 비롯해 사당, 정원만이 남아 있는데, 본채 주변에 공간이 넓고, 부엌이 없으며, 대문이 멀리 떨어져 있는 것으로 보아 다른 건물들이 더 있었을 것으로 추정된다.
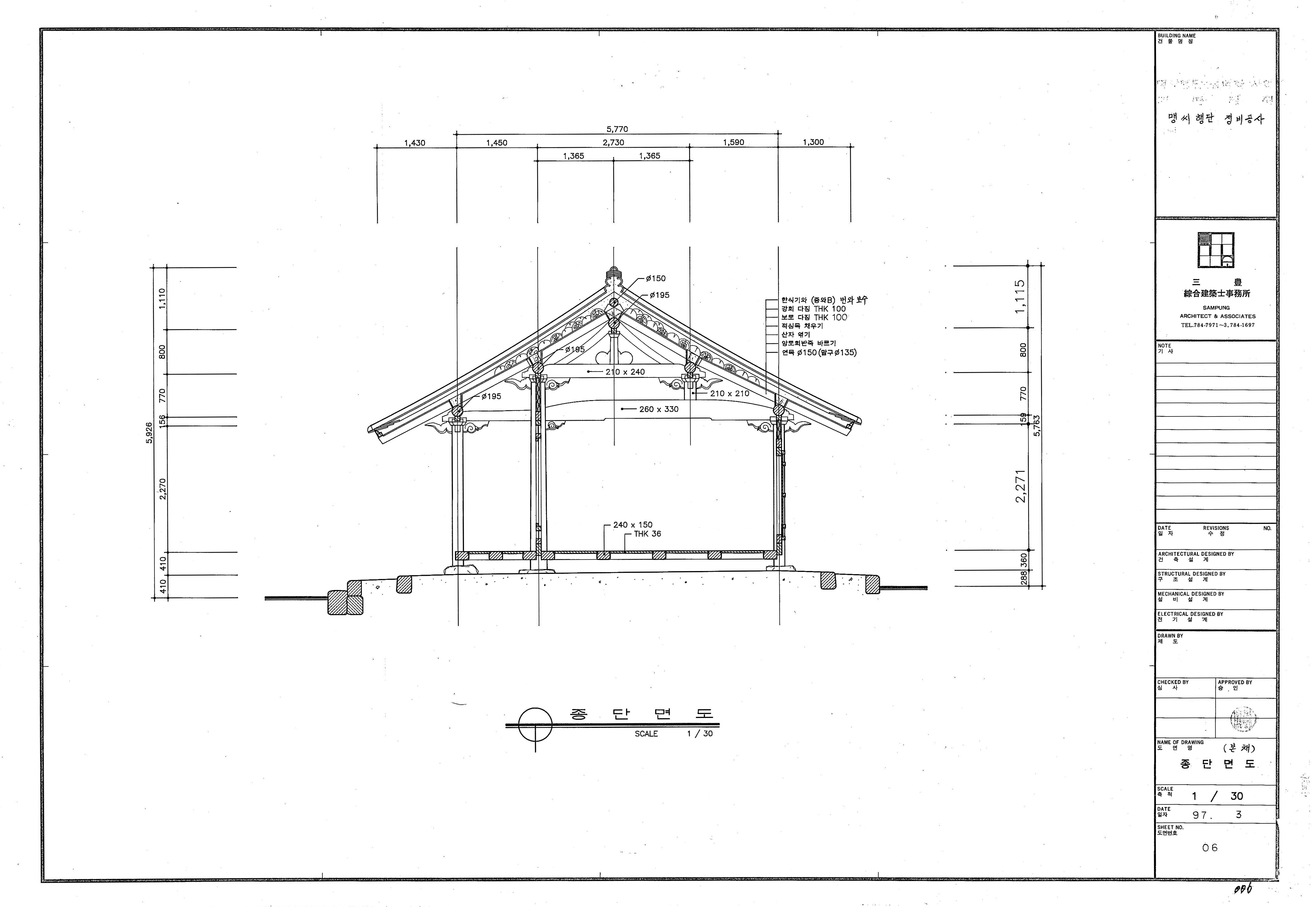
맹씨고택은 넓은 대지 위에 건립된 행단은 막돌로 허튼층쌓기를 하여 낮게 기단을 만들고 그 위에 네모뿔대의 초석을 놓고 방형기둥을 세웠다. 기둥 위에는 공포를 짜 얹고 맞배형으로 기와지붕을 얹었다. 가장 특징적인 것은 기둥 위의 공포를 구성하는 살미(山彌)와 지붕 꼭대기 여덟 팔자 모양의 부재 솟을합장이다.
살미는 앙서(仰舌)의 형태로 되어있는데 고려 말기부터 조선 초기에 이르는 목조양식이다. 솟을합장은 약하게 안으로 굽어진 형태로 17세기까지 사용되었던 양식이다.
본체 건물 구조의 형식은 공(工)자형 혹은 H자형이라 부른다. 정면 네 칸, 측면 세 칸으로, 중앙에 두 칸의 대청을 두고, 그 좌우에 각기 익랑채를 연접해 두었다. 좌익채는 세 칸이며, 우익채는 한 칸의 건물이 배치되어 있다. 가장 큰 특징은 본체에 부엌이 설치되어 있지 않다는 점인데, 조선전기에는 이동식 화로를 사용하였기에 오늘날 아궁이를 설치한 부엌이 보이지 않는 것이 아닐까 싶다.
반응형
'국내여행 > 충청도' 카테고리의 다른 글
| 구괴정(九槐亭) - 맹씨행단 - 배방읍 - 아산시 - 충남 (0) | 2025.12.31 |
|---|---|
| 세덕사 - 맹씨행단 - 배방읍 - 아산시 - 충남 (0) | 2025.12.31 |
| 푸른산장가든 - 송악면 - 아산시 (1) | 2025.12.31 |
| 고불맹사성기념관 - 배방읍 - 아산시 - 충남 (0) | 2025.12.31 |
| 맹씨행단 - 배방읍 - 아산시 - 충남 (0) | 2025.12.31 |